
Penthouse at Veranda Sahl Hasheesh
Spacious layout with multiple rooms and outdoor terraces
£152348.00£106643.00
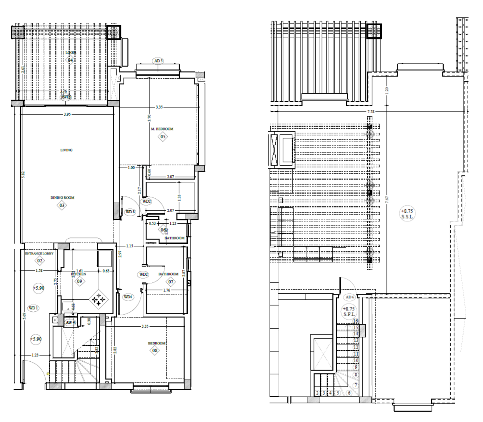
Experience modern living at its finest with this meticulously crafted residential building floor plan. Showcasing spacious living areas, multiple bedrooms, elegant bathrooms, and expansive outdoor terraces, every detail is thoughtfully designed for comfort, versatility, and effortless flow. The layout maximizes natural light and functional space, creating an inviting atmosphere perfect for families or individuals who desire contemporary style and convenience. Precise room dimensions and customizable color schemes are available to help you personalize your dream home, ask for our furniture packages.
🌴 Veranda Sahl Hasheesh – Phase 6 (Now Selling)
Developed by Selena Development – creators of Selena Bay, Palma Resort, and Mansions El Gouna.
About Veranda
Set across 130,000 sqm of serene landscaped gardens and calming lagoons, Veranda embodies refined coastal living at its best.
This exclusive gated resort in Sahl Hasheesh combines luxury, privacy, and natural beauty, with a full suite of premium amenities designed for relaxation and elegance.
Residents enjoy:
🏖 Private Beach Access – 12.5 km of pristine coastline
🏊 Multiple Swimming Pools – peaceful and crystal clear
🌿 Lush Landscaped Gardens – tranquil and refreshing
💆 Clubhouse & Spa – wellness and leisure facilities
💪 Fully Equipped Gym – fitness with Red Sea views
☕ Beach Lounge & Café – unwind in luxury
🔒 Gated Community with 24/7 Security – total peace of mind
🌅 Available Unit – Two-Bedroom Penthouse
Unit Area: 125 sqm
Roof Area: 65 sqm
Total Area: 190 sqm
Layout: 2 Bedrooms, 2 Bathrooms, Lounge & Kitchenette
View: Pool & Sea
Delivery: 2.5 years – Fully Finished
💰 Total Price: £152,348
🔹 15% Down Payment: £22,852
🔹 Quarterly Installments (6 Years): £5,387 per quarter
🔹 Cash Offer (30% Discount): £106,643
🔹 Maintenance Fee: 10% of total price, payable upon delivery
🏡 Project Highlights
Down Payment: 15%
Installments: Up to 6 years
Delivery: 2026
Phase: 6 (Now Selling)
⚠️ Important Notice
Prices and availability are subject to change
Exchange rates may fluctuate
📞 Contact PadsAbroad Ltd
📧 info@padsabroad.net
🌍 www.padsabroad.info
📞 UK: +44 7429 368 398 (Yasmin)
📞 Egypt: +20 0100 103 0661 (Ramy)
